






|
特點:
.安裝簡易
|
|
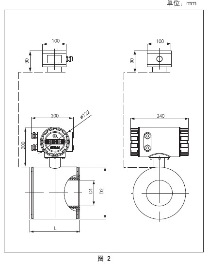
外形及尺寸表1
|
|
常州市成豐流量儀表有限公司作為國內知名的電磁流量計生產廠家,擁有30多年的歷史,所研發生產的電磁流量計用料考究、質量上乘、技術精湛。連續抽檢合格率100%,每臺高精度的電磁流量計的使用壽命均在5-8年,故障率極低。在長期使用后發生故障維修后依然可以穩定工作,也許你會覺得這是天經地義,的確成豐也是如此理解 所以在品質上力求做到媲美進口。這些都是是當前市場上一些低價產品所無法比擬的,浮躁的生產和投入市場后,使用1-2年就會損壞并且無法維修,從環保的角度看也無疑是制造了大量的工業垃圾。在售后服務方面,常州成豐儀表本著人性化的模式提供24小時金牌服務,真正做到讓客戶買的稱心 用著放心 。常州成豐做真正的國產高端電磁流量計。